
公园驿站建筑的详细施工图设计图纸

公园驿站建筑的详细施工图设计图纸

公园驿站建筑的详细施工图设计图纸
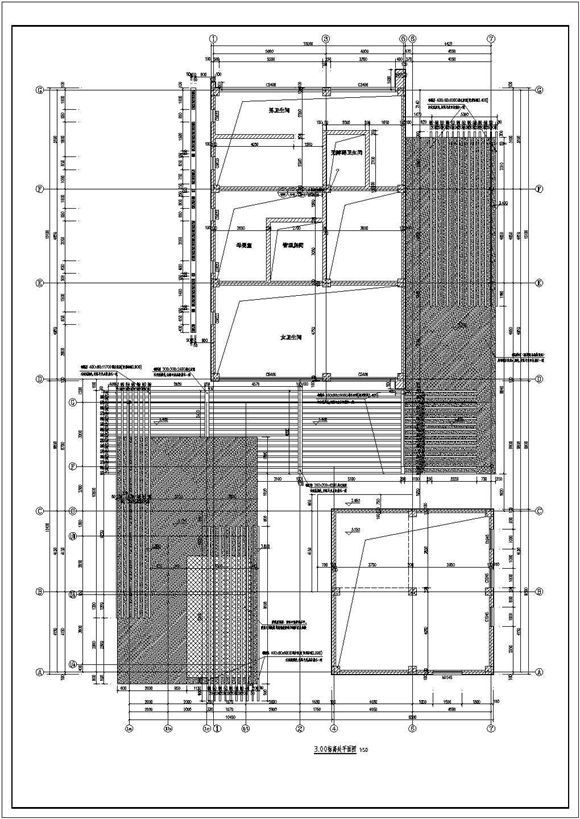
休闲驿站详细施工图设计。图纸包括:建筑设计说明、建筑各层平面图、屋顶平面图、立面图、剖面图、楼梯大样、局部大样图。该图纸设计深度达到施工图设计深度要求,平立剖面图纸齐全,值得五星推荐。

公园驿站建筑的详细施工图设计图纸

公园驿站建筑的详细施工图设计图纸

公园驿站建筑的详细施工图设计图纸
休闲驿站详细施工图设计。图纸包括:建筑设计说明、建筑各层平面图、屋顶平面图、立面图、剖面图、楼梯大样、局部大样图。该图纸设计深度达到施工图设计深度要求,平立剖面图纸齐全,值得五星推荐。
声明:资源收集自网络或用户分享,仅供学习参考,如侵犯您的权益,请联系我们处理。
不能下载?报告错误