
某三房两厅两卫装修设计图纸(全套)

某三房两厅两卫装修设计图纸(全套)

某三房两厅两卫装修设计图纸(全套)
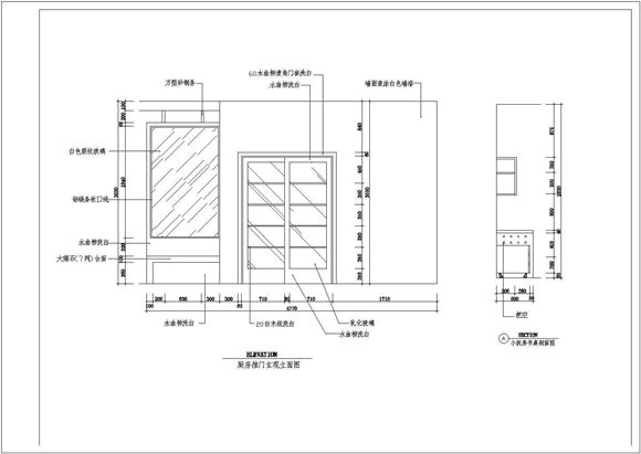
本图纸为:某三房两厅两卫装修设计图纸(全套),其中包含:平面图、立面图、剖面图等,可供参考。--https://www.guifan.net/

某三房两厅两卫装修设计图纸(全套)

某三房两厅两卫装修设计图纸(全套)

某三房两厅两卫装修设计图纸(全套)
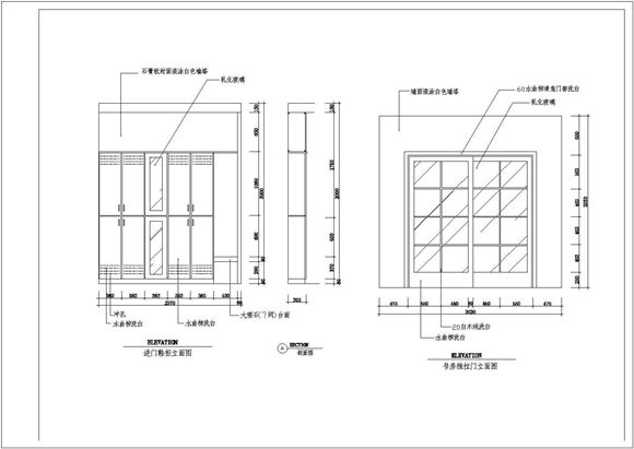
本图纸为:某三房两厅两卫装修设计图纸(全套),其中包含:平面图、立面图、剖面图等,可供参考。--https://www.guifan.net/
声明:资源收集自网络或用户分享,仅供学习参考,如侵犯您的权益,请联系我们处理。
不能下载?报告错误