当前位置:首页  资料内容详情

完整的银行装修设计施工图(全套)

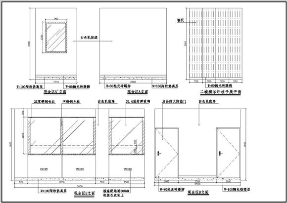
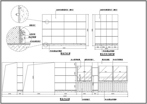
完整的银行装修设计施工图(全套) 完整的银行装修设计施工图(全套) 完整的银行装修设计施工图(全套) 本图纸为:完整的银行装修设计施工图(全套),其中包含:平面图、立面图、剖面图等,可供参考。

完整的银行装修设计施工图(全套)

声明:本站为网络服务提供者及网络索引服务平台资源索引自网络/用户分享,如有版权问题,请联系站方删除。

不能下载?报告错误