
常用的玻璃幕墙节点cad构造大样图(23张)

常用的玻璃幕墙节点cad构造大样图(23张)

常用的玻璃幕墙节点cad构造大样图(23张)
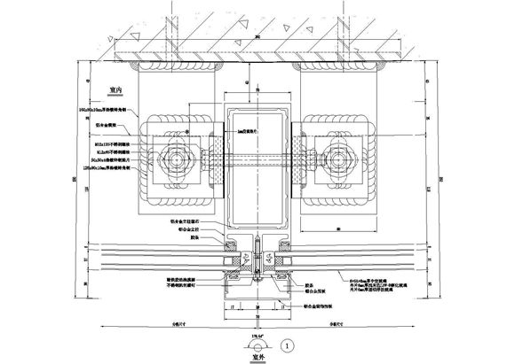
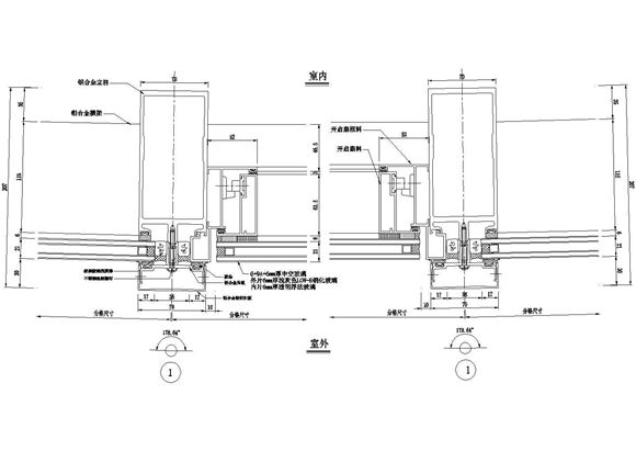
本图纸为常用的玻璃幕墙节点cad构造大样图,图纸共有23张,幕墙设计为经典常用设计,值得参考。

常用的玻璃幕墙节点cad构造大样图(23张)

常用的玻璃幕墙节点cad构造大样图(23张)

常用的玻璃幕墙节点cad构造大样图(23张)
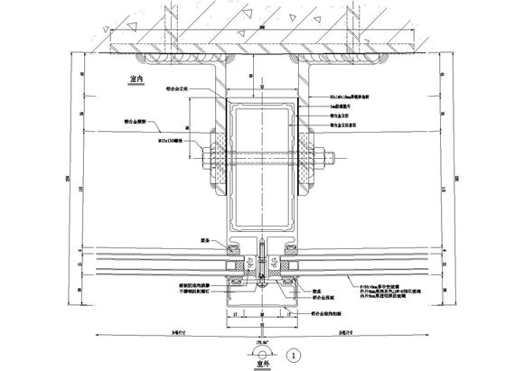
本图纸为常用的玻璃幕墙节点cad构造大样图,图纸共有23张,幕墙设计为经典常用设计,值得参考。
声明:资源收集自网络或用户分享,仅供学习参考,如侵犯您的权益,请联系我们处理。
不能下载?报告错误