当前位置:首页  资料内容详情

景观型地埋式箱变系统及大样图

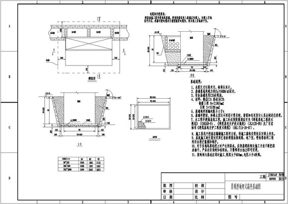
景观型地埋式箱变系统及大样图 景观型地埋式箱变系统及大样图 景观型地埋式箱变系统及大样图 本资料为景观型地埋式箱变系统及大样图,其包含的内容为平面图,剖面图,设计说明等内容详实,可供设计师下载参考。

景观型地埋式箱变系统及大样图

声明:本站为网络服务提供者及网络索引服务平台资源索引自网络/用户分享,如有版权问题,请联系站方删除。

不能下载?报告错误