
某五层私人住宅房屋建筑设计规划图

某五层私人住宅房屋建筑设计规划图

某五层私人住宅房屋建筑设计规划图
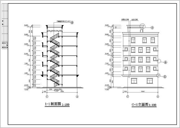
本图纸为:某五层私人住宅房屋建筑设计规划图,内容包括:首层平面图、二---四层平面图、五层平面图、天面平面图、1--4立面图、4--1立面图、1--1剖面图、C---A立面图等,可供参考。

某五层私人住宅房屋建筑设计规划图

某五层私人住宅房屋建筑设计规划图

某五层私人住宅房屋建筑设计规划图
本图纸为:某五层私人住宅房屋建筑设计规划图,内容包括:首层平面图、二---四层平面图、五层平面图、天面平面图、1--4立面图、4--1立面图、1--1剖面图、C---A立面图等,可供参考。
声明:资源收集自网络或用户分享,仅供学习参考,如侵犯您的权益,请联系我们处理。
不能下载?报告错误