
某地区商业住宅楼设计平面图(共7张)

某地区商业住宅楼设计平面图(共7张)

某地区商业住宅楼设计平面图(共7张)
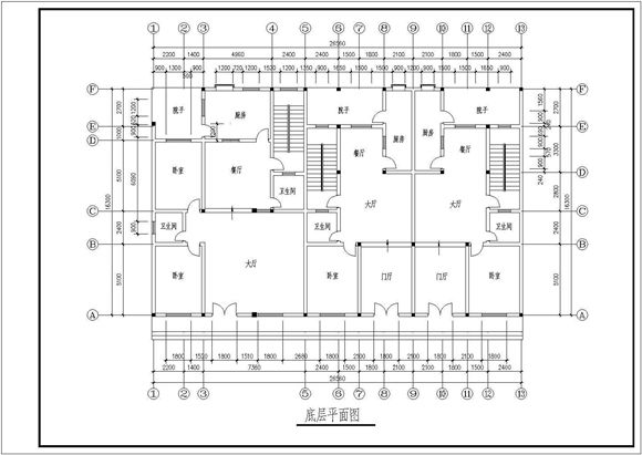
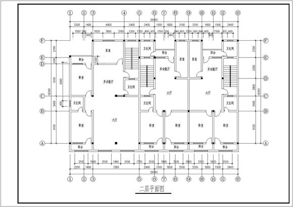
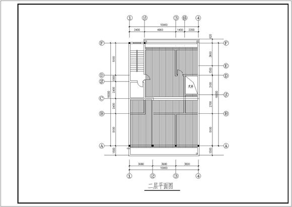
本资料为某地区商业住宅楼设计平面图(7图),内容包含建筑平面图,地基平面图,底层平面图等内容详实,可供设计师下载参考。

某地区商业住宅楼设计平面图(共7张)

某地区商业住宅楼设计平面图(共7张)

某地区商业住宅楼设计平面图(共7张)
本资料为某地区商业住宅楼设计平面图(7图),内容包含建筑平面图,地基平面图,底层平面图等内容详实,可供设计师下载参考。
声明:资源收集自网络或用户分享,仅供学习参考,如侵犯您的权益,请联系我们处理。
不能下载?报告错误