
某地旧楼改造建筑施工图(含设计说明)

某地旧楼改造建筑施工图(含设计说明)

某地旧楼改造建筑施工图(含设计说明)
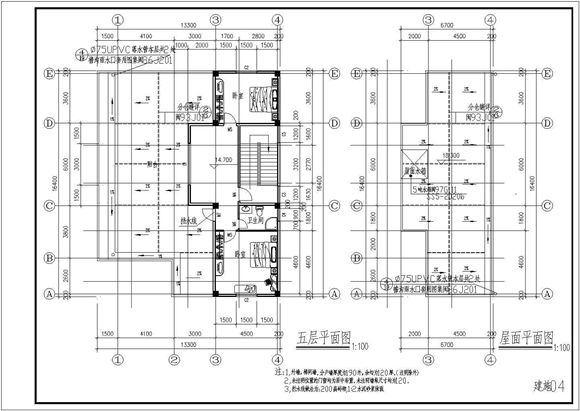
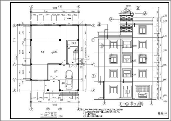
本资料为某地旧楼改造建筑施工图(含设计说明)其内容包含:建筑平面图,建筑立面图,建筑设计说明等,可供设计师下载参考。

某地旧楼改造建筑施工图(含设计说明)

某地旧楼改造建筑施工图(含设计说明)

某地旧楼改造建筑施工图(含设计说明)
本资料为某地旧楼改造建筑施工图(含设计说明)其内容包含:建筑平面图,建筑立面图,建筑设计说明等,可供设计师下载参考。
声明:资源收集自网络或用户分享,仅供学习参考,如侵犯您的权益,请联系我们处理。
不能下载?报告错误