
高层住宅楼全套建施图地下室施工图图纸

高层住宅楼全套建施图地下室施工图图纸

高层住宅楼全套建施图地下室施工图图纸
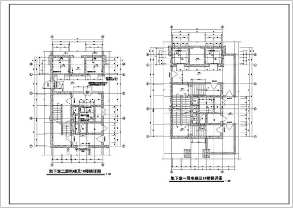
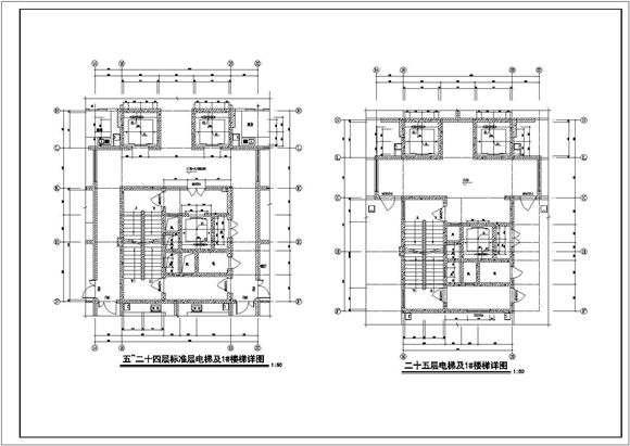
本图纸为高层住宅楼全套建施图地下室施工图图纸,内容有立面图,剖面图,平面图。内容详尽,可供参考。

高层住宅楼全套建施图地下室施工图图纸

高层住宅楼全套建施图地下室施工图图纸

高层住宅楼全套建施图地下室施工图图纸
本图纸为高层住宅楼全套建施图地下室施工图图纸,内容有立面图,剖面图,平面图。内容详尽,可供参考。
声明:资源收集自网络或用户分享,仅供学习参考,如侵犯您的权益,请联系我们处理。
不能下载?报告错误