
比较齐全的建筑平面图(标注详细)

比较齐全的建筑平面图(标注详细)

比较齐全的建筑平面图(标注详细)
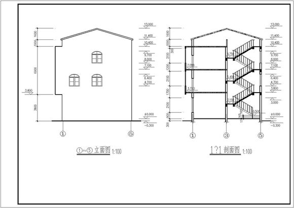
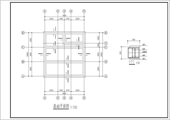
本资料为:比较齐全的建筑平面图(标注详细)内容包括:基础平面图,底层平面图,一层楼梯大样图等内容,可供参考。

比较齐全的建筑平面图(标注详细)

比较齐全的建筑平面图(标注详细)

比较齐全的建筑平面图(标注详细)
本资料为:比较齐全的建筑平面图(标注详细)内容包括:基础平面图,底层平面图,一层楼梯大样图等内容,可供参考。
声明:资源收集自网络或用户分享,仅供学习参考,如侵犯您的权益,请联系我们处理。
不能下载?报告错误