当前位置:首页  资料内容详情

某美容院装修cad平面布置施工图

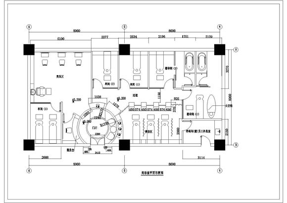
某美容院装修cad平面布置施工图 某美容院装修cad平面布置施工图 某美容院装修cad平面布置施工图 本图纸为:某美容院装修cad平面布置施工图,其中包含平面图等。内容详实,可供参考。

某美容院装修cad平面布置施工图

声明:本站为网络服务提供者及网络索引服务平台资源索引自网络/用户分享,如有版权问题,请联系站方删除。

不能下载?报告错误