
某学生宿舍综合布线图电气设计方案图纸

某学生宿舍综合布线图电气设计方案图纸

某学生宿舍综合布线图电气设计方案图纸
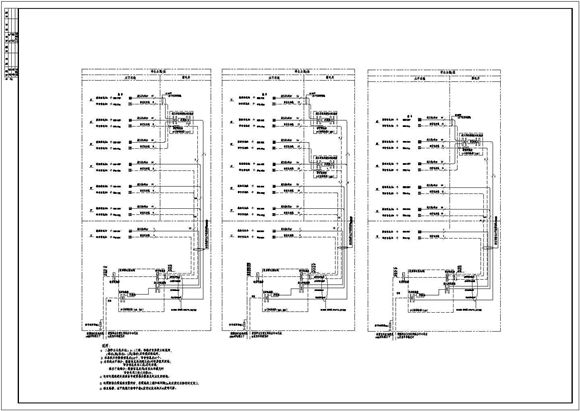
本图纸为:某学生宿舍综合布线图电气设计方案图纸,内容包括:C栋4层、E栋4层弱电平面,C栋5层弱电平面等内容,可供参考。

某学生宿舍综合布线图电气设计方案图纸

某学生宿舍综合布线图电气设计方案图纸

某学生宿舍综合布线图电气设计方案图纸
本图纸为:某学生宿舍综合布线图电气设计方案图纸,内容包括:C栋4层、E栋4层弱电平面,C栋5层弱电平面等内容,可供参考。
声明:资源收集自网络或用户分享,仅供学习参考,如侵犯您的权益,请联系我们处理。
不能下载?报告错误