
某新华书店综合楼施工全套CAD平面图

某新华书店综合楼施工全套CAD平面图

某新华书店综合楼施工全套CAD平面图
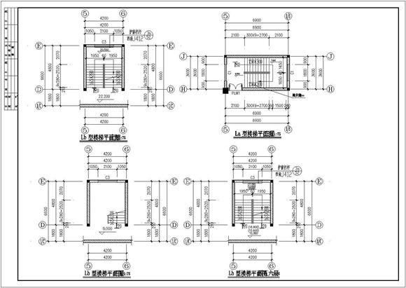
本图纸为:某新华书店综合楼施工全套CAD平面图本套图纸包括:图纸目录、工程作法、门窗表、各层建筑平面、立面、剖面图、卫生间详图、楼梯间图、墙身大样等

某新华书店综合楼施工全套CAD平面图

某新华书店综合楼施工全套CAD平面图

某新华书店综合楼施工全套CAD平面图
本图纸为:某新华书店综合楼施工全套CAD平面图本套图纸包括:图纸目录、工程作法、门窗表、各层建筑平面、立面、剖面图、卫生间详图、楼梯间图、墙身大样等
声明:资源收集自网络或用户分享,仅供学习参考,如侵犯您的权益,请联系我们处理。
不能下载?报告错误