
某学校校史展厅初步设计+展板设计(含效果图)

某学校校史展厅初步设计+展板设计(含效果图)

某学校校史展厅初步设计+展板设计(含效果图)
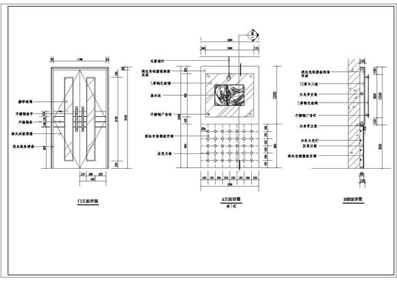
顶面尺寸定位图平面插座布置图顶面照明线路图平面布置图顶面布置图平面尺寸定位图A立面图A立面详图展板B立面详图门厅J立面详图展板D立面详图展板E立面详图展板F立面详图G立面详

某学校校史展厅初步设计+展板设计(含效果图)

某学校校史展厅初步设计+展板设计(含效果图)

某学校校史展厅初步设计+展板设计(含效果图)
顶面尺寸定位图平面插座布置图顶面照明线路图平面布置图顶面布置图平面尺寸定位图A立面图A立面详图展板B立面详图门厅J立面详图展板D立面详图展板E立面详图展板F立面详图G立面详
声明:资源收集自网络或用户分享,仅供学习参考,如侵犯您的权益,请联系我们处理。
不能下载?报告错误