
体育馆建筑设计方案全套CAD平面图纸

体育馆建筑设计方案全套CAD平面图纸

体育馆建筑设计方案全套CAD平面图纸
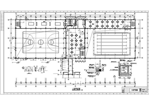
本图纸为:体育馆建筑设计方案全套CAD平面图纸本套图纸包括:图纸目录、工程作法、门窗表、各层建筑平面、立面、剖面图、卫生间详图、楼梯间图、墙身大样等

体育馆建筑设计方案全套CAD平面图纸

体育馆建筑设计方案全套CAD平面图纸

体育馆建筑设计方案全套CAD平面图纸
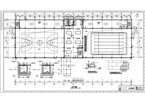
本图纸为:体育馆建筑设计方案全套CAD平面图纸本套图纸包括:图纸目录、工程作法、门窗表、各层建筑平面、立面、剖面图、卫生间详图、楼梯间图、墙身大样等
声明:资源收集自网络或用户分享,仅供学习参考,如侵犯您的权益,请联系我们处理。
不能下载?报告错误