
湖南省某城乡私人住宅CAD施工图

湖南省某城乡私人住宅CAD施工图

湖南省某城乡私人住宅CAD施工图
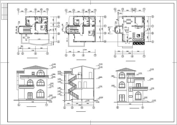
本图纸为:湖南省某城乡私人住宅CAD施工图,其中包含平面图,立面图及剖面图等。内容详实,可供参考。

湖南省某城乡私人住宅CAD施工图

湖南省某城乡私人住宅CAD施工图

湖南省某城乡私人住宅CAD施工图
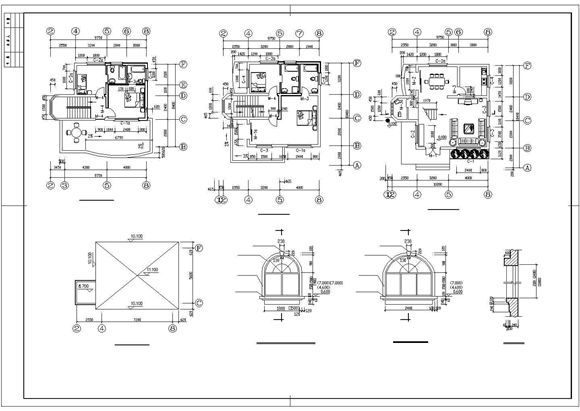
本图纸为:湖南省某城乡私人住宅CAD施工图,其中包含平面图,立面图及剖面图等。内容详实,可供参考。
声明:资源收集自网络或用户分享,仅供学习参考,如侵犯您的权益,请联系我们处理。
不能下载?报告错误