
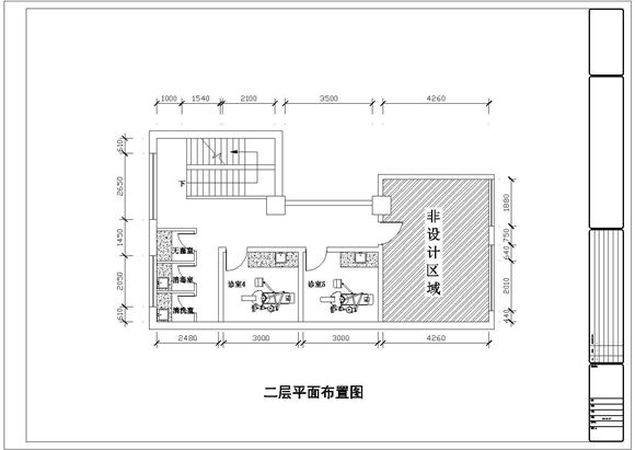
某地口腔诊所室内装修平面设计图

某地口腔诊所室内装修平面设计图

某地口腔诊所室内装修平面设计图
图中有平面布置图、空间结构图、天花图、地面图布图、各空间立面图、各立面剖切、大样、节点图等等,内容设计精准全面,内容详实,可供参考

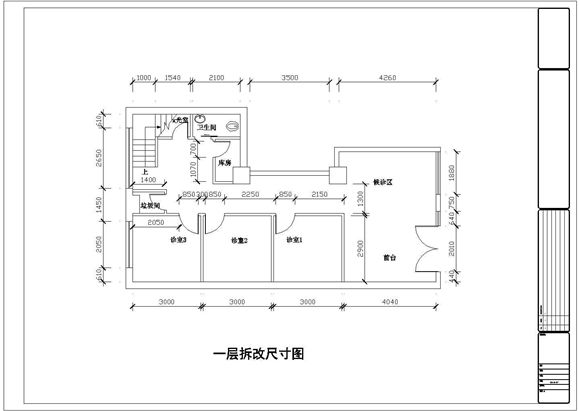
某地口腔诊所室内装修平面设计图

某地口腔诊所室内装修平面设计图

某地口腔诊所室内装修平面设计图
图中有平面布置图、空间结构图、天花图、地面图布图、各空间立面图、各立面剖切、大样、节点图等等,内容设计精准全面,内容详实,可供参考
声明:资源收集自网络或用户分享,仅供学习参考,如侵犯您的权益,请联系我们处理。
不能下载?报告错误