
某地知名幼儿园建筑设计施工图纸(全套)

某地知名幼儿园建筑设计施工图纸(全套)

某地知名幼儿园建筑设计施工图纸(全套)
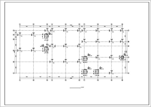
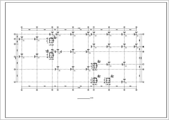
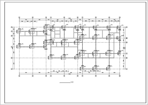
本图纸为某地知名幼儿园建筑设计施工图纸(全套),其内容包括各层平面图,立面图等图纸,可供参考。

某地知名幼儿园建筑设计施工图纸(全套)

某地知名幼儿园建筑设计施工图纸(全套)

某地知名幼儿园建筑设计施工图纸(全套)
本图纸为某地知名幼儿园建筑设计施工图纸(全套),其内容包括各层平面图,立面图等图纸,可供参考。
声明:资源收集自网络或用户分享,仅供学习参考,如侵犯您的权益,请联系我们处理。
不能下载?报告错误