
生物活性炭滤池(污水深度处理)

生物活性炭滤池(污水深度处理)

生物活性炭滤池(污水深度处理)
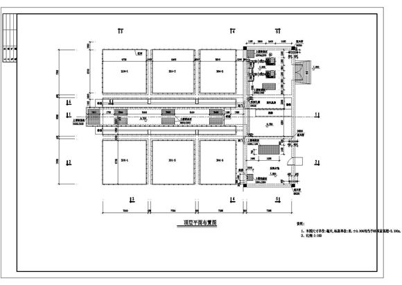
这是臭氧活性炭吸附工艺的生物活性炭滤池的工艺设计图。本设计图来源于石化污水处理中深度处理,系来自五大市政设计院中的某一家单位,实力强,图纸表达完整,很有参考价值,是从事市政工程教学、设计、施工知道的

生物活性炭滤池(污水深度处理)

生物活性炭滤池(污水深度处理)

生物活性炭滤池(污水深度处理)
这是臭氧活性炭吸附工艺的生物活性炭滤池的工艺设计图。本设计图来源于石化污水处理中深度处理,系来自五大市政设计院中的某一家单位,实力强,图纸表达完整,很有参考价值,是从事市政工程教学、设计、施工知道的
声明:资源收集自网络或用户分享,仅供学习参考,如侵犯您的权益,请联系我们处理。
不能下载?报告错误