
某地大型钢结构人行天桥结构示意图

某地大型钢结构人行天桥结构示意图

某地大型钢结构人行天桥结构示意图
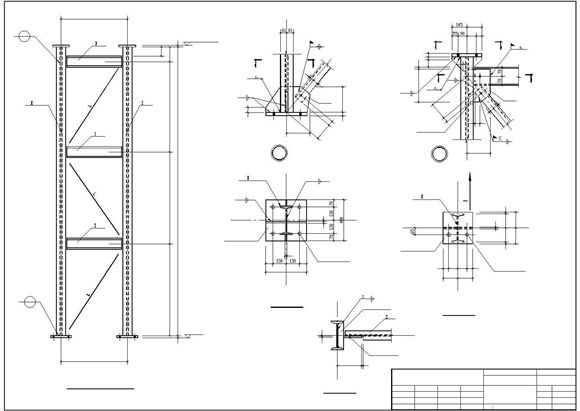
本工程为某地大型钢结构人行天桥结构示意图,包含平面图、立面图、大样图。图纸内容完整,表达清晰,制图严谨,欢迎设计师下载使用。

某地大型钢结构人行天桥结构示意图

某地大型钢结构人行天桥结构示意图

某地大型钢结构人行天桥结构示意图
本工程为某地大型钢结构人行天桥结构示意图,包含平面图、立面图、大样图。图纸内容完整,表达清晰,制图严谨,欢迎设计师下载使用。
声明:资源收集自网络或用户分享,仅供学习参考,如侵犯您的权益,请联系我们处理。
不能下载?报告错误