
小型车间轻钢结构施工图(独立基础,共5张)

小型车间轻钢结构施工图(独立基础,共5张)

小型车间轻钢结构施工图(独立基础,共5张)
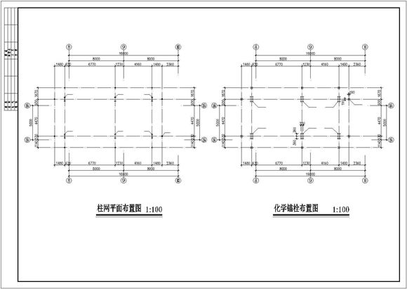
建筑功能:工业建筑厂房高度类别:单层厂房图纸深度:施工图民用建筑设计使用年限:50年结构形式:钢结构钢结构:门式刚架,轻钢结构基础形式:独立基础结构安全等级:二级图纸张数:5张内容

小型车间轻钢结构施工图(独立基础,共5张)

小型车间轻钢结构施工图(独立基础,共5张)

小型车间轻钢结构施工图(独立基础,共5张)
建筑功能:工业建筑厂房高度类别:单层厂房图纸深度:施工图民用建筑设计使用年限:50年结构形式:钢结构钢结构:门式刚架,轻钢结构基础形式:独立基础结构安全等级:二级图纸张数:5张内容
声明:资源收集自网络或用户分享,仅供学习参考,如侵犯您的权益,请联系我们处理。
不能下载?报告错误