
某小区住宅建筑设计方案图(共13张)

某小区住宅建筑设计方案图(共13张)

某小区住宅建筑设计方案图(共13张)
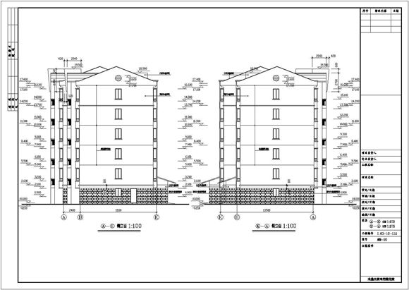
本资料为某小区住宅建筑设计方案图(共13张),其包含的内容为屋顶平面图,一层平面图,二层平面图,三层平面图,立面图,剖面图,节点详图等内容详实,可供设计师下载参考。

某小区住宅建筑设计方案图(共13张)

某小区住宅建筑设计方案图(共13张)

某小区住宅建筑设计方案图(共13张)
本资料为某小区住宅建筑设计方案图(共13张),其包含的内容为屋顶平面图,一层平面图,二层平面图,三层平面图,立面图,剖面图,节点详图等内容详实,可供设计师下载参考。
声明:资源收集自网络或用户分享,仅供学习参考,如侵犯您的权益,请联系我们处理。
不能下载?报告错误