
某大酒店设计平面功能分布图

某大酒店设计平面功能分布图

某大酒店设计平面功能分布图
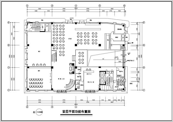
本图为某大酒店设计平面功能分布图,内容包括酒店平面功能配套说明、负一层平面功能分布图、首层平面功能分布图、二层平面功能分布图、四层平面功能分布图、天面平面图等;本图设计专业规范,可供参考学习

某大酒店设计平面功能分布图

某大酒店设计平面功能分布图

某大酒店设计平面功能分布图
本图为某大酒店设计平面功能分布图,内容包括酒店平面功能配套说明、负一层平面功能分布图、首层平面功能分布图、二层平面功能分布图、四层平面功能分布图、天面平面图等;本图设计专业规范,可供参考学习
声明:资源收集自网络或用户分享,仅供学习参考,如侵犯您的权益,请联系我们处理。
不能下载?报告错误