
某办公楼电路施工图(共20张)

某办公楼电路施工图(共20张)

某办公楼电路施工图(共20张)
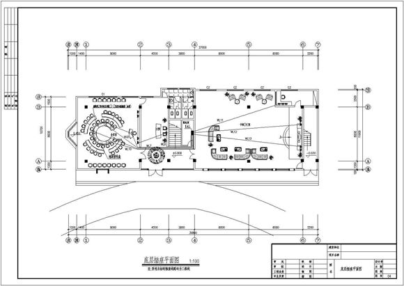
本资料为某办公楼电路施工图(共20张),其包含的内容有:屋顶防雷平面图,底层照明平面图,二层照明平面图,三层插座平面图,弱电系统图,四层弱电平面图等内容详实,可供设计师下载参考。

某办公楼电路施工图(共20张)

某办公楼电路施工图(共20张)

某办公楼电路施工图(共20张)
本资料为某办公楼电路施工图(共20张),其包含的内容有:屋顶防雷平面图,底层照明平面图,二层照明平面图,三层插座平面图,弱电系统图,四层弱电平面图等内容详实,可供设计师下载参考。
声明:资源收集自网络或用户分享,仅供学习参考,如侵犯您的权益,请联系我们处理。
不能下载?报告错误