
背栓式干挂石材装修cad详细大样施工图

背栓式干挂石材装修cad详细大样施工图

背栓式干挂石材装修cad详细大样施工图
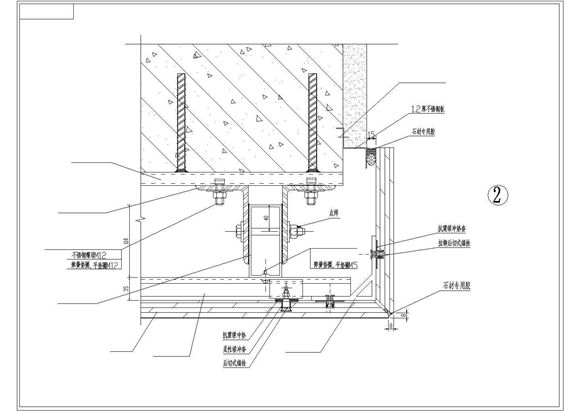
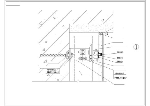
本图为背栓式干挂石材装修cad详细大样施工图,包含干挂石材样式图,设计精美,可供设计师下载参考。

背栓式干挂石材装修cad详细大样施工图

背栓式干挂石材装修cad详细大样施工图

背栓式干挂石材装修cad详细大样施工图
本图为背栓式干挂石材装修cad详细大样施工图,包含干挂石材样式图,设计精美,可供设计师下载参考。
声明:资源收集自网络或用户分享,仅供学习参考,如侵犯您的权益,请联系我们处理。
不能下载?报告错误