
钢桁架结构商业街人行天桥结构图(共8张图)

钢桁架结构商业街人行天桥结构图(共8张图)

钢桁架结构商业街人行天桥结构图(共8张图)(@https://www.guifan.net/)
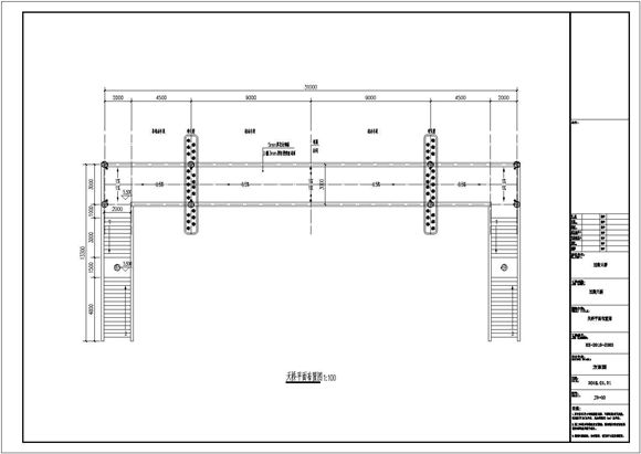
建筑功能:交通建筑图纸深度:方案(初设图)民用建筑设计使用年限:50年结构形式:钢结构钢结构:桁架结构安全等级:二级地基基础设计等级:丙级抗震设防烈度:6度抗震风压:0.40kN/㎡

钢桁架结构商业街人行天桥结构图(共8张图)

钢桁架结构商业街人行天桥结构图(共8张图)

钢桁架结构商业街人行天桥结构图(共8张图)(@https://www.guifan.net/)
建筑功能:交通建筑图纸深度:方案(初设图)民用建筑设计使用年限:50年结构形式:钢结构钢结构:桁架结构安全等级:二级地基基础设计等级:丙级抗震设防烈度:6度抗震风压:0.40kN/㎡
声明:资源收集自网络或用户分享,仅供学习参考,如侵犯您的权益,请联系我们处理。
不能下载?报告错误