规范网
更新
当前位置:
规范网
资料
内容详情
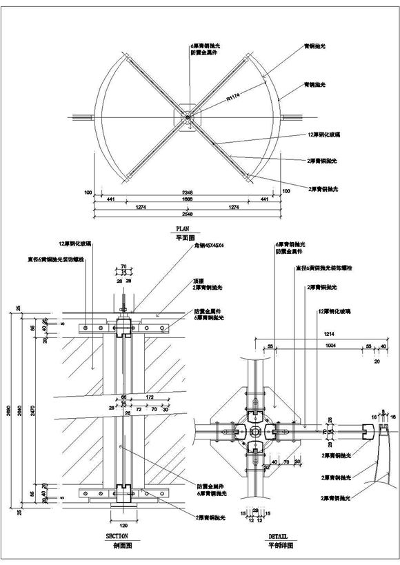
旋转门做法详细全套完整的cad图纸
旋转门做法详细全套完整的cad图纸
旋转门做法其中包含立面图;剖面图;平面图等。内容详实,可供参考
加入收藏
下载文件
声明:资源收集自网络或用户分享,仅供学习参考,如侵犯您的权益,请联系我们处理。
不能下载?报告错误
下页:
旋风除尘器加工制作整套图纸
相关推荐
商业综合体反恐怖防范规范 (DB5117/T 110-2024)
大型商业综合体消防安全管理规范 (DB64/T 2017-2024)
大型商业综合体智能消防应急照明和疏散指示系统技术规程 (DB1501/T 0056-2024)
反恐怖防范系统管理规范 第27部分:商业综合体 (DB3301/T 65.27-2024)
应急管理体系建设 大型商业综合体 (DB11/T 2219-2024)
旋转门做法详细全套完整的cad图纸
下载文件
免费下载
标签
城镇建设规范
学校工作计划
16s518
司法规范
工作通知
粮食规范
垫圈标准
建筑工程规范
新疆维吾尔自治区标准
甘肃省标准
转正申请
化工规范
粉煤灰标准
环境保护规范
航天规范
钢结构标准
石油化工规范
人防
采购总结
食用盐标准
城市轨道
江苏省标准
平垫圈标准
数据标准
iec标准
交通运输规范
项目申请
过滤器标准