
篮球场、羽毛球、网球场CAD图纸

篮球场、羽毛球、网球场CAD图纸

篮球场、羽毛球、网球场CAD图纸
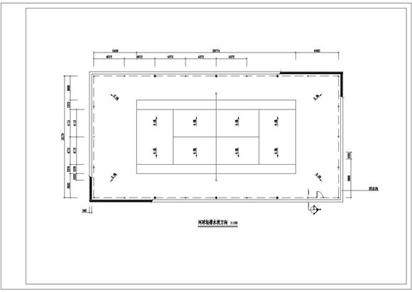
篮球场、羽毛球、网球场平面布置图,篮球场看台剖面图,球场地面大样,网球场中心带的固定断面详图,网球场、篮球场组装式围网立面详图,篮球场、网球场挡土墙剖面图等。

篮球场、羽毛球、网球场CAD图纸

篮球场、羽毛球、网球场CAD图纸

篮球场、羽毛球、网球场CAD图纸
篮球场、羽毛球、网球场平面布置图,篮球场看台剖面图,球场地面大样,网球场中心带的固定断面详图,网球场、篮球场组装式围网立面详图,篮球场、网球场挡土墙剖面图等。
声明:资源收集自网络或用户分享,仅供学习参考,如侵犯您的权益,请联系我们处理。
不能下载?报告错误