
全套详细的别墅建筑施工图(共18张)

全套详细的别墅建筑施工图(共18张)

全套详细的别墅建筑施工图(共18张)
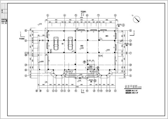
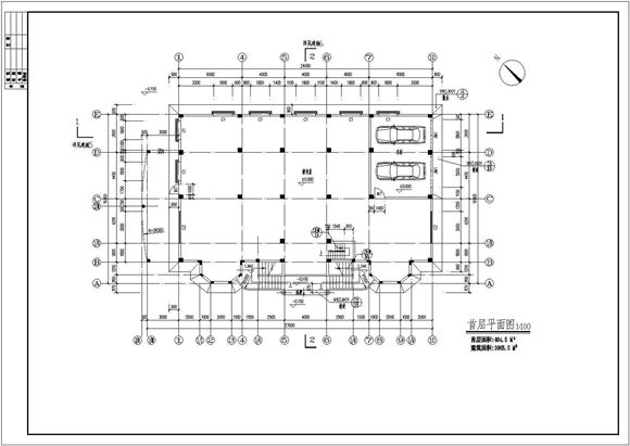
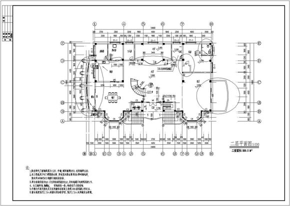
本资料为全套详细的别墅施工图(共18张),其包含的内容有:首层平面图,二层平面图,三层平面图,2#梯首层平面图,轴立面图,5#卫生间大样,总平面图,2-2剖面图等内容详实,可供设计师下载参考。

全套详细的别墅建筑施工图(共18张)

全套详细的别墅建筑施工图(共18张)

全套详细的别墅建筑施工图(共18张)
本资料为全套详细的别墅施工图(共18张),其包含的内容有:首层平面图,二层平面图,三层平面图,2#梯首层平面图,轴立面图,5#卫生间大样,总平面图,2-2剖面图等内容详实,可供设计师下载参考。
声明:资源收集自网络或用户分享,仅供学习参考,如侵犯您的权益,请联系我们处理。
不能下载?报告错误