规范网
更新
当前位置:
规范网
资料
内容详情
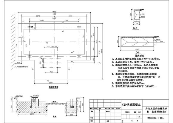
井架曳引式物料提升机基础图集锦
井架曳引式物料提升机基础图集锦
井架曳引式物料提升机基础图集锦
井架曳引式物料提升机基础图集锦
内容简介井架曳引式物料提升机基础图集锦共包括4张不同基础尺寸图纸
加入收藏
下载文件
声明:资源收集自网络或用户分享,仅供学习参考,如侵犯您的权益,请联系我们处理。
不能下载?报告错误
下页:
电磁流量计井大样图DN300/DN400
相关推荐
坡面屋顶阵列前后间距计算和遮挡物影长计算公式V1.1
光伏专用电缆选型计算,汇流箱至逆变器电缆选型计算,短路电流计算,组串数量计算
风力发电经济评价模型案例
风电 水电效益测算分析表
分布式光伏工程报价参考计算表格
井架曳引式物料提升机基础图集锦
下载文件
免费下载
标签
动力学
销售总结
体育规范
汽车规范
吉林省标准
插头标准
环境保护规范
抽样标准
管道标准
社会实践报告
黑龙江省标准
转正申请
船舶规范
紧固件标准
个人工作计划
通知模板
动平衡标准
检验标准
林业规范
手册
路桥
测绘规范
教师发言稿
学习总结
质量管理体系标准
海南省标准
酒店工作计划
石油天然气规范