
某大型通风风机标准cad设计施工图例(标注详细)
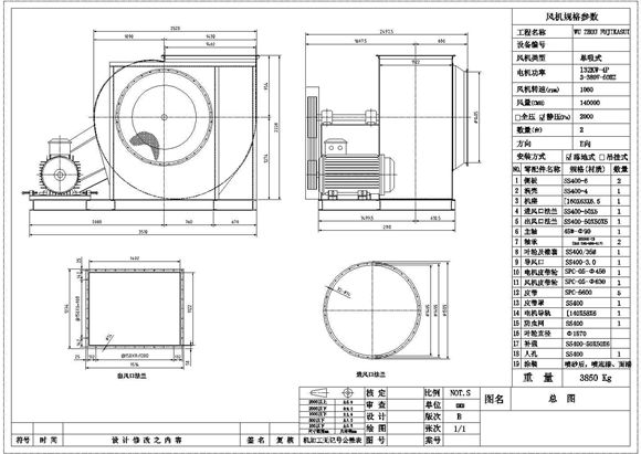
本图纸为某大型通风风机标准cad设计施工图例(标注详细);包括:出风口法兰图、进风口法兰图、风机正视图、风机侧视图、风机规格参数表等;设计规范,可供参考学习。

某大型通风风机标准cad设计施工图例(标注详细)
本图纸为某大型通风风机标准cad设计施工图例(标注详细);包括:出风口法兰图、进风口法兰图、风机正视图、风机侧视图、风机规格参数表等;设计规范,可供参考学习。
声明:资源收集自网络或用户分享,仅供学习参考,如侵犯您的权益,请联系我们处理。
不能下载?报告错误