
某化粪池结构设计图,共8张图

某化粪池结构设计图,共8张图

某化粪池结构设计图,共8张图
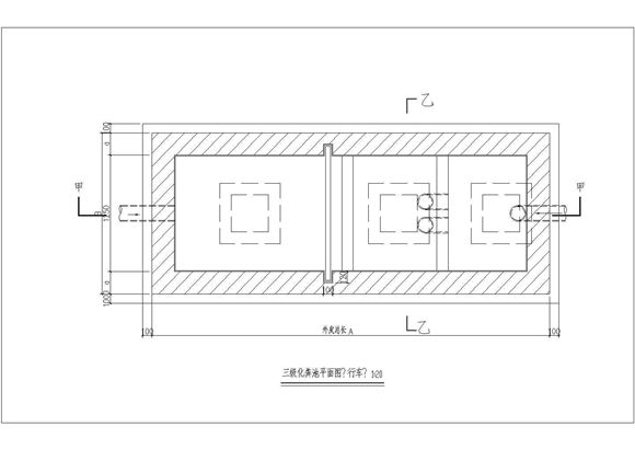
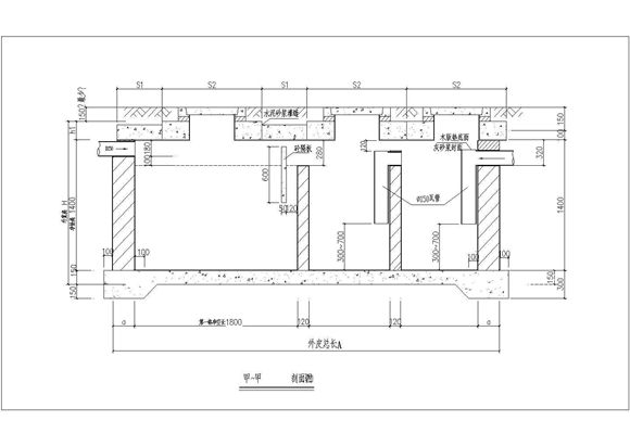
建筑功能:工业建筑图纸深度:施工图民用建筑设计使用年限:50年结构形式:砌体结构特种结构:水池图纸张数:8张设计时间:2011内容简介图纸包括:平面图,剖面图,节点详图等共8张图

某化粪池结构设计图,共8张图

某化粪池结构设计图,共8张图

某化粪池结构设计图,共8张图
建筑功能:工业建筑图纸深度:施工图民用建筑设计使用年限:50年结构形式:砌体结构特种结构:水池图纸张数:8张设计时间:2011内容简介图纸包括:平面图,剖面图,节点详图等共8张图
声明:资源收集自网络或用户分享,仅供学习参考,如侵犯您的权益,请联系我们处理。
不能下载?报告错误