
污水处理厂混凝沉淀池结构图纸(含设计说明)

污水处理厂混凝沉淀池结构图纸(含设计说明)

污水处理厂混凝沉淀池结构图纸(含设计说明)
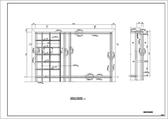
污水处理厂-混凝沉淀池,图纸9张,包括:混凝沉淀池结构设计说明、混凝沉淀平面布置图、剖面图、混凝沉淀平面配筋图、混凝沉淀底板配筋图、钢筋表等。

污水处理厂混凝沉淀池结构图纸(含设计说明)

污水处理厂混凝沉淀池结构图纸(含设计说明)

污水处理厂混凝沉淀池结构图纸(含设计说明)
污水处理厂-混凝沉淀池,图纸9张,包括:混凝沉淀池结构设计说明、混凝沉淀平面布置图、剖面图、混凝沉淀平面配筋图、混凝沉淀底板配筋图、钢筋表等。
声明:资源收集自网络或用户分享,仅供学习参考,如侵犯您的权益,请联系我们处理。
不能下载?报告错误