
22477平方米殡仪馆全套建筑设计方案(共23张图)

22477平方米殡仪馆全套建筑设计方案(共23张图)

22477平方米殡仪馆全套建筑设计方案(共23张图)
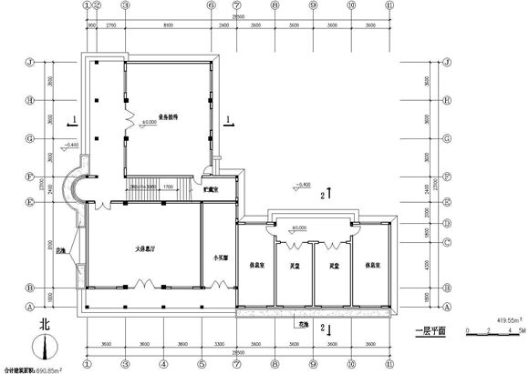
本图纸为全套的殡仪馆全套建筑设计方案,总用地面积22477M,总建筑面积4876M包括的图纸为:殡仪馆总平面图殡仪馆总功能分区图殡仪馆绿化景观分析图殡仪馆道路系统

22477平方米殡仪馆全套建筑设计方案(共23张图)

22477平方米殡仪馆全套建筑设计方案(共23张图)

22477平方米殡仪馆全套建筑设计方案(共23张图)
本图纸为全套的殡仪馆全套建筑设计方案,总用地面积22477M,总建筑面积4876M包括的图纸为:殡仪馆总平面图殡仪馆总功能分区图殡仪馆绿化景观分析图殡仪馆道路系统
声明:资源收集自网络或用户分享,仅供学习参考,如侵犯您的权益,请联系我们处理。
不能下载?报告错误