
某18米跨钢结构厂房设计图(含结构设计说明)

某18米跨钢结构厂房设计图(含结构设计说明)

某18米跨钢结构厂房设计图(含结构设计说明)
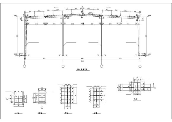
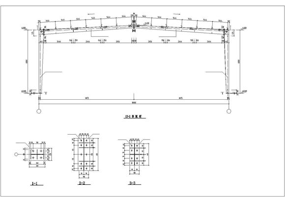
本次设计为:某18米跨钢结构厂房设计图图纸包括:结构设计说明、基础锚栓布置图、屋面檩条、拉条、隅撑布置图、墙梁布置图、檩条、拉条连接节点、节点构造详图共18张图纸。

某18米跨钢结构厂房设计图(含结构设计说明)

某18米跨钢结构厂房设计图(含结构设计说明)

某18米跨钢结构厂房设计图(含结构设计说明)
本次设计为:某18米跨钢结构厂房设计图图纸包括:结构设计说明、基础锚栓布置图、屋面檩条、拉条、隅撑布置图、墙梁布置图、檩条、拉条连接节点、节点构造详图共18张图纸。
声明:资源收集自网络或用户分享,仅供学习参考,如侵犯您的权益,请联系我们处理。
不能下载?报告错误