
某钢结构大门结构设计图

某钢结构大门结构设计图

某钢结构大门结构设计图
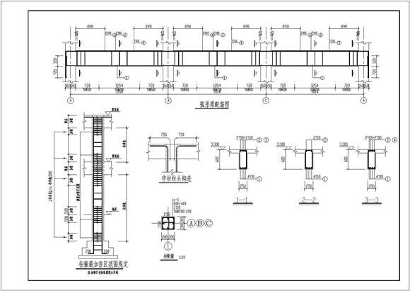
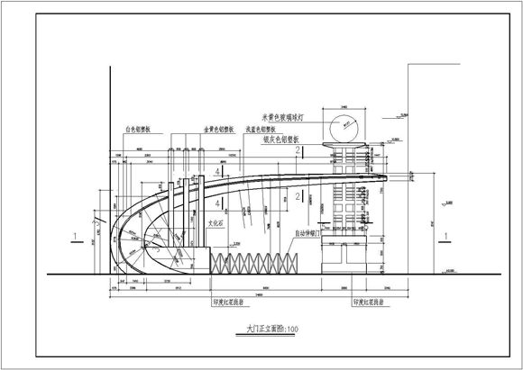
某钢结构大门结构设计图本次设计为:某钢结构大门结构设计图图纸包括:门卫正立面图、平面图、弧形梁配筋图、柱箍筋加密区范围规定、楼板配筋图、楼板预埋件平面图共6张图纸。

某钢结构大门结构设计图

某钢结构大门结构设计图

某钢结构大门结构设计图
某钢结构大门结构设计图本次设计为:某钢结构大门结构设计图图纸包括:门卫正立面图、平面图、弧形梁配筋图、柱箍筋加密区范围规定、楼板配筋图、楼板预埋件平面图共6张图纸。
声明:资源收集自网络或用户分享,仅供学习参考,如侵犯您的权益,请联系我们处理。
不能下载?报告错误