当前位置:首页  资料内容详情

地下室底板集水井及集水沟大样(图集)

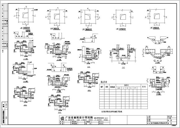
地下室底板集水井及集水沟大样(图集) 广东省建筑设计研究院结构施工图设计实用图集(非新规范):钢筋混凝土结构部分之四十三地下室底板集水井及集水沟大样

地下室底板集水井及集水沟大样(图集)

声明:本站为网络服务提供者及网络索引服务平台资源索引自网络/用户分享,如有版权问题,请联系站方删除。

不能下载?报告错误