
水利工程过路涵5种规格图 涵管直径,300mm、400mm、600mm、800mm和1000mm

水利工程过路涵5种规格图 涵管直径,300mm、400mm、600mm、800mm和1000mm

水利工程过路涵5种规格图 涵管直径,300mm、400mm、600mm、800mm和1000mm
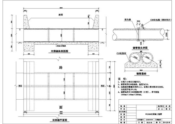
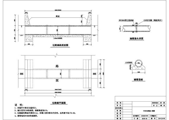
水利工程过路涵5种规格图涵管直径,300mm、400mm、600mm、800mm和1000mm,图纸包括:过路涵平面图、过路涵纵剖面图、涵管接头详图、涵管基础图,可供参考。

水利工程过路涵5种规格图 涵管直径,300mm、400mm、600mm、800mm和1000mm

水利工程过路涵5种规格图 涵管直径,300mm、400mm、600mm、800mm和1000mm

水利工程过路涵5种规格图 涵管直径,300mm、400mm、600mm、800mm和1000mm
水利工程过路涵5种规格图涵管直径,300mm、400mm、600mm、800mm和1000mm,图纸包括:过路涵平面图、过路涵纵剖面图、涵管接头详图、涵管基础图,可供参考。
声明:资源收集自网络或用户分享,仅供学习参考,如侵犯您的权益,请联系我们处理。
不能下载?报告错误