当前位置:首页  资料内容详情

一套详细的电梯大样图(共4张)

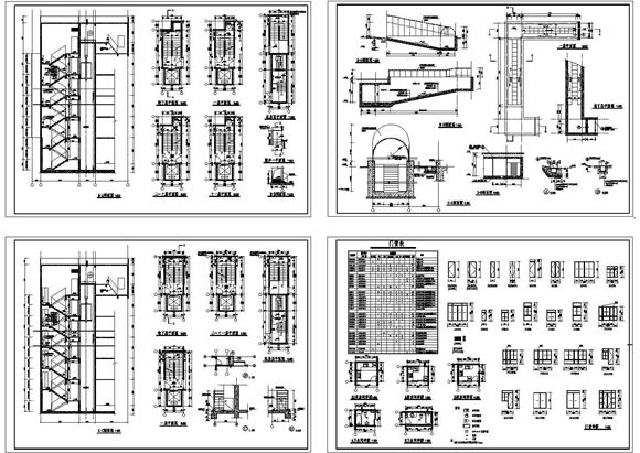
一套详细的电梯大样图(共4张) 本资料为一套详细的电梯大样图(共4张),其包括C-C剖面图、一层平面图等内容,具有下载参考价值。

一套详细的电梯大样图(共4张)

声明:本站为网络服务提供者及网络索引服务平台资源索引自网络/用户分享,如有版权问题,请联系站方删除。

不能下载?报告错误