
某大型商场空调设计方案图(共6张图纸)

某大型商场空调设计方案图(共6张图纸)

某大型商场空调设计方案图(共6张图纸)
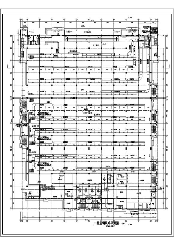
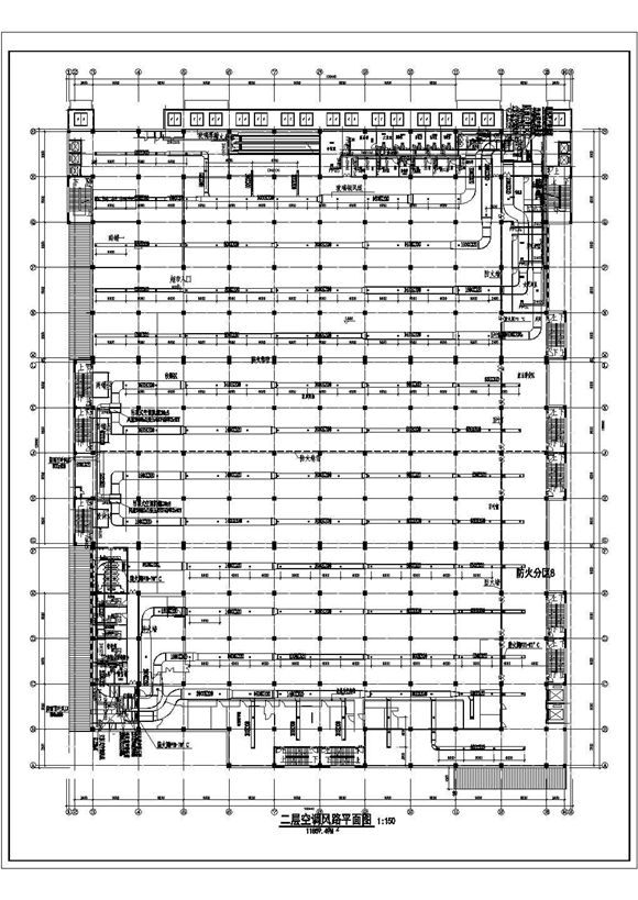
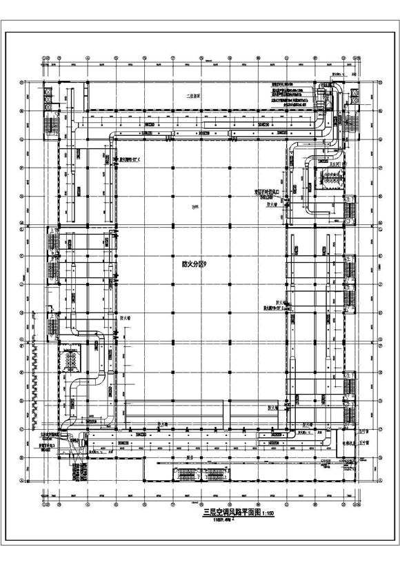
某大型商场空调设计方案图,包括:一层空调风路平面图;二层空调风路平面图;三层空调风路平面图;四层风机盘管平面图;四层风机盘管平面布置图;冷却水泵设备基础图等。-www.guifan.net

某大型商场空调设计方案图(共6张图纸)

某大型商场空调设计方案图(共6张图纸)

某大型商场空调设计方案图(共6张图纸)
某大型商场空调设计方案图,包括:一层空调风路平面图;二层空调风路平面图;三层空调风路平面图;四层风机盘管平面图;四层风机盘管平面布置图;冷却水泵设备基础图等。-www.guifan.net
声明:资源收集自网络或用户分享,仅供学习参考,如侵犯您的权益,请联系我们处理。
不能下载?报告错误