
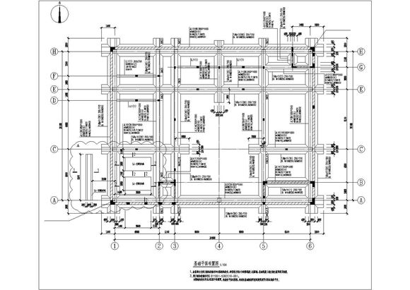
[节点详图]空调机组底座基础节点构造详图

[节点详图]空调机组底座基础节点构造详图

[节点详图]空调机组底座基础节点构造详图
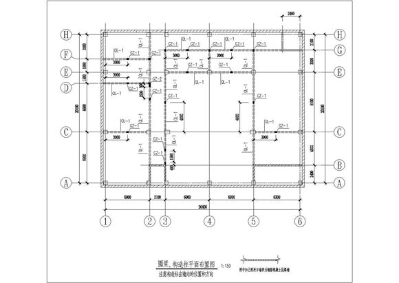
基础平面布置图、条形基础配筋示意图、圈梁、构造柱平面布置图共1张图纸。-www.guifan.net

[节点详图]空调机组底座基础节点构造详图

[节点详图]空调机组底座基础节点构造详图

[节点详图]空调机组底座基础节点构造详图
基础平面布置图、条形基础配筋示意图、圈梁、构造柱平面布置图共1张图纸。-www.guifan.net
声明:资源收集自网络或用户分享,仅供学习参考,如侵犯您的权益,请联系我们处理。
不能下载?报告错误