
某筏板基础标准施工cad图,共5张

某筏板基础标准施工cad图,共5张

某筏板基础标准施工cad图,共5张
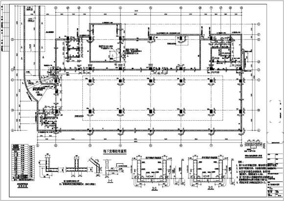
某筏板基础标准施工图图纸包括:地下室墙柱布置图、地下室底板剖面大样图、基础平面布置图、筏板底筋配筋图、筏板面筋配筋图共5张图纸。

某筏板基础标准施工cad图,共5张

某筏板基础标准施工cad图,共5张

某筏板基础标准施工cad图,共5张
某筏板基础标准施工图图纸包括:地下室墙柱布置图、地下室底板剖面大样图、基础平面布置图、筏板底筋配筋图、筏板面筋配筋图共5张图纸。
声明:资源收集自网络或用户分享,仅供学习参考,如侵犯您的权益,请联系我们处理。
不能下载?报告错误