
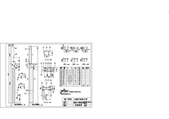
混凝土牛腿柱模板图及结构配筋节点图(标注详细,适合新手))
本资料为混凝土牛腿柱模板图及结构配筋节点图(标注详细,适合新手)),包括:BZ9-1配筋图,BZ9-1模板图,配筋图等,设计规范,可供设计师参考

混凝土牛腿柱模板图及结构配筋节点图(标注详细,适合新手))
本资料为混凝土牛腿柱模板图及结构配筋节点图(标注详细,适合新手)),包括:BZ9-1配筋图,BZ9-1模板图,配筋图等,设计规范,可供设计师参考
声明:资源收集自网络或用户分享,仅供学习参考,如侵犯您的权益,请联系我们处理。
不能下载?报告错误