规范网
更新
当前位置:
规范网
资料
内容详情
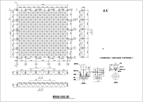
钢结构工程网架结构与支座反力节点详图
钢结构工程网架结构与支座反力节点详图
钢结构工程网架结构与支座反力节点详图
钢结构工程网架结构与支座反力节点详图
本资料为钢结构工程网架结构与支座反力节点,设计精准,可供网友下载参考
加入收藏
下载文件
声明:资源收集自网络或用户分享,仅供学习参考,如侵犯您的权益,请联系我们处理。
不能下载?报告错误
下页:
高速公路路基仰斜式路堑挡土墙结构设计图
相关推荐
3B282图集 带式输送机通廊建筑节点详图
国标图集03G363多层砖房钢筋混凝土构造柱抗震节点详图
景墙泰科石斜面景墙、台阶等节点详图
铝单板节点详图铝单板节点详细CAD图纸
全玻璃驳接爪式幕墙系统标准节点详图
钢结构工程网架结构与支座反力节点详图
下载文件
免费下载
标签
手册
煤炭规范
卫生规范
食用盐标准
思想汇报
15j401
档案规范
酒店工作计划
管螺纹标准
辽宁省标准
福建省标准
党员总结
最新更新
能源规范
机械制图标准
过滤器标准
园林
四川省标准
河北省标准
电气
邮政规范
退刀槽标准
银行工作计划
民用航空规范
司法规范
个人总结
教学评语
气象规范