
非常实用的50款混凝土结构楼梯cad施工图设计(标注详细)

非常实用的50款混凝土结构楼梯cad施工图设计(标注详细)

非常实用的50款混凝土结构楼梯cad施工图设计(标注详细)
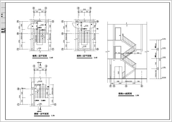
本资料为:非常实用的50款混凝土结构楼梯cad施工图设计(标注详细),包括:多层双折混凝土楼梯、小楼梯和栏杆、29款各式各样混凝土楼梯等等,设计精准,符合相关规范,可供各位设计师参考和学习!

非常实用的50款混凝土结构楼梯cad施工图设计(标注详细)

非常实用的50款混凝土结构楼梯cad施工图设计(标注详细)

非常实用的50款混凝土结构楼梯cad施工图设计(标注详细)
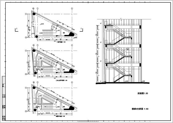
本资料为:非常实用的50款混凝土结构楼梯cad施工图设计(标注详细),包括:多层双折混凝土楼梯、小楼梯和栏杆、29款各式各样混凝土楼梯等等,设计精准,符合相关规范,可供各位设计师参考和学习!
声明:资源收集自网络或用户分享,仅供学习参考,如侵犯您的权益,请联系我们处理。
不能下载?报告错误