
40米T梁模板设计图(中梁边梁)

40米T梁模板设计图(中梁边梁)

40米T梁模板设计图(中梁边梁)
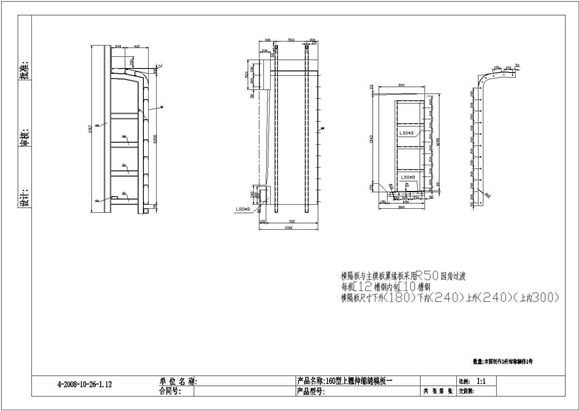
编制时间:2008使用性:公路桥内容简介其中包括:下翘正常侧模下翘变截侧模上翘正常侧模160型下翘伸缩缝模板(一、二)边跨中梁伸缩缝端封头上翘调节-https://www.guifan.net/

40米T梁模板设计图(中梁边梁)

40米T梁模板设计图(中梁边梁)

40米T梁模板设计图(中梁边梁)
编制时间:2008使用性:公路桥内容简介其中包括:下翘正常侧模下翘变截侧模上翘正常侧模160型下翘伸缩缝模板(一、二)边跨中梁伸缩缝端封头上翘调节-https://www.guifan.net/
声明:资源收集自网络或用户分享,仅供学习参考,如侵犯您的权益,请联系我们处理。
不能下载?报告错误