
地下车库无梁楼盖结构柱帽详图

地下车库无梁楼盖结构柱帽详图

地下车库无梁楼盖结构柱帽详图
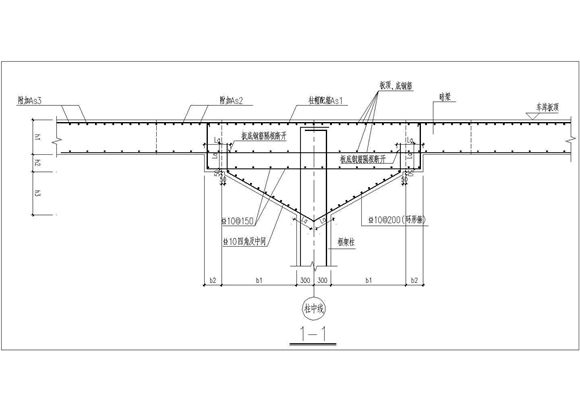
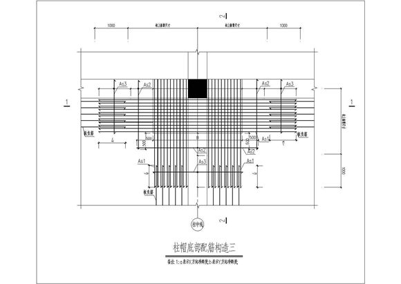
无梁楼盖结构柱帽详图,包括:地下车库顶结构大样图,板顶筋配筋构造,柱帽底部配筋构造,板顶筋配筋构造,柱帽底部配筋构造,柱帽底部配筋构造共计3张图。

地下车库无梁楼盖结构柱帽详图

地下车库无梁楼盖结构柱帽详图

地下车库无梁楼盖结构柱帽详图
无梁楼盖结构柱帽详图,包括:地下车库顶结构大样图,板顶筋配筋构造,柱帽底部配筋构造,板顶筋配筋构造,柱帽底部配筋构造,柱帽底部配筋构造共计3张图。
声明:资源收集自网络或用户分享,仅供学习参考,如侵犯您的权益,请联系我们处理。
不能下载?报告错误