
非常详细的信息中心机房系统结构图
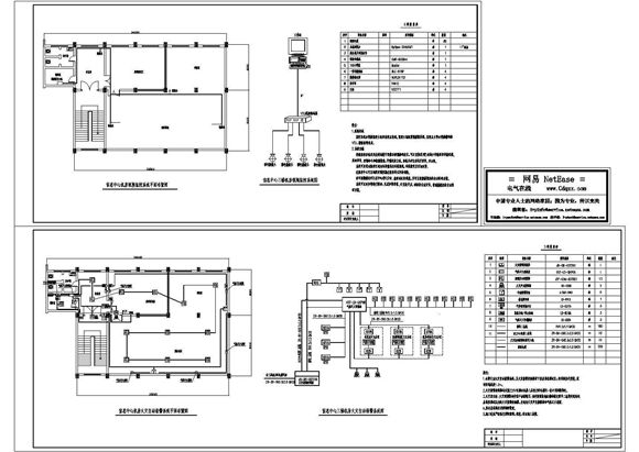
本资料为:非常详细的信息中心机房系统结构图资料内容包括:信息中心机房视频监控系统平面布置图、信息中心三楼机房视频监控系统图、信息中心机房火灾自动报警系统平面布置图等内容详实,可供设计师下载参考。

非常详细的信息中心机房系统结构图
本资料为:非常详细的信息中心机房系统结构图资料内容包括:信息中心机房视频监控系统平面布置图、信息中心三楼机房视频监控系统图、信息中心机房火灾自动报警系统平面布置图等内容详实,可供设计师下载参考。
声明:资源收集自网络或用户分享,仅供学习参考,如侵犯您的权益,请联系我们处理。
不能下载?报告错误