规范网
更新
当前位置:
规范网
资料
内容详情
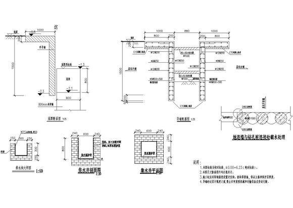
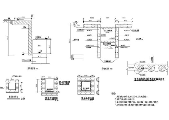
800mm厚地下连续墙导墙结构图
800mm厚地下连续墙导墙结构图
800mm厚地下连续墙导墙结构图
本资料为800mm厚地下连续墙导墙结构图。设计精准,可供网友下载参考。
加入收藏
下载文件
声明:资源收集自网络或用户分享,仅供学习参考,如侵犯您的权益,请联系我们处理。
不能下载?报告错误
下页:
钢支撑及钢围檩结构详图
相关推荐
承插型盘扣式钢管脚手架全套培训资料(含ppt课件、视频、表格、方案共9个文件)
碧桂园 精装修工程瓷片及抛光砖施工工艺 63页培训PPT资料
录井资料质量控制规范 (SY/T 6438-2024)
井中地震资料采集技术规程 (SY/T 5454-2024)
1∶5000 1∶10000基础地理信息数据更新成果资料汇交技术要求 (DB34/T 4983-2025)
800mm厚地下连续墙导墙结构图
下载文件
免费下载
标签
结构
人事总结
机关单位工作计划
角钢标准
动力学
安全帽标准
蝶阀标准
轻工业规范
实习报告
工作通知
财务总结
垫圈标准
社会实践报告
外经贸规范
上海市标准
林业规范
司法规范
法兰标准
阀门标准
船舶规范
粉煤灰标准
个人工作计划
球墨铸铁管标准
浙江省标准
钢球标准
新疆维吾尔自治区标准
食品安全标准
旅游规范