当前位置:首页  资料内容详情

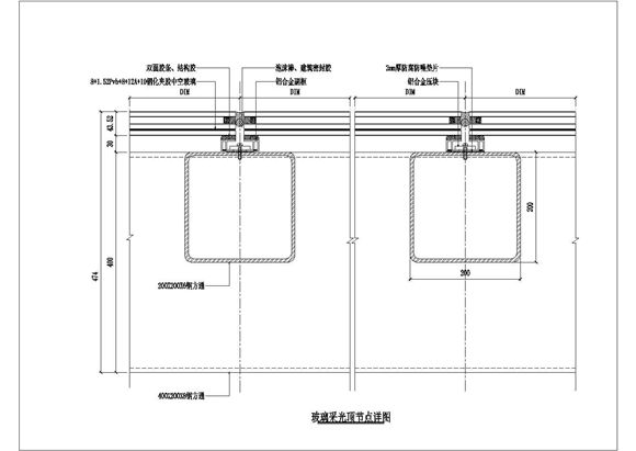
玻璃采光顶节点详图

玻璃采光顶节点详图 玻璃幕墙工程节点做法详图,CAD格式,方便编辑,编写玻璃幕墙施工方案、幕墙工程施工组织设计等可参考借鉴。

玻璃采光顶节点详图

声明:本站为网络服务提供者及网络索引服务平台资源索引自网络/用户分享,如有版权问题,请联系站方删除。

不能下载?报告错误